





Conformadora de bandeja de cables
Linbay ofrece la máquina de conformado de bandeja de cables, este perfil es ideal para la gestión de cables en aplicaciones comerciales, centros de datos y salas de telecomunicaciones, proporcionando un método flexible de adaptación de la bandeja según la aplicación en el lugar de trabajo. Hay múltiples diseños, cada uno personalizado, basado en su diseño podremos proporcionarle la opción más viable para usted. Actualmente hemos fabricado la bandeja de cables para Argentina, Australia, Italia y Rusia.
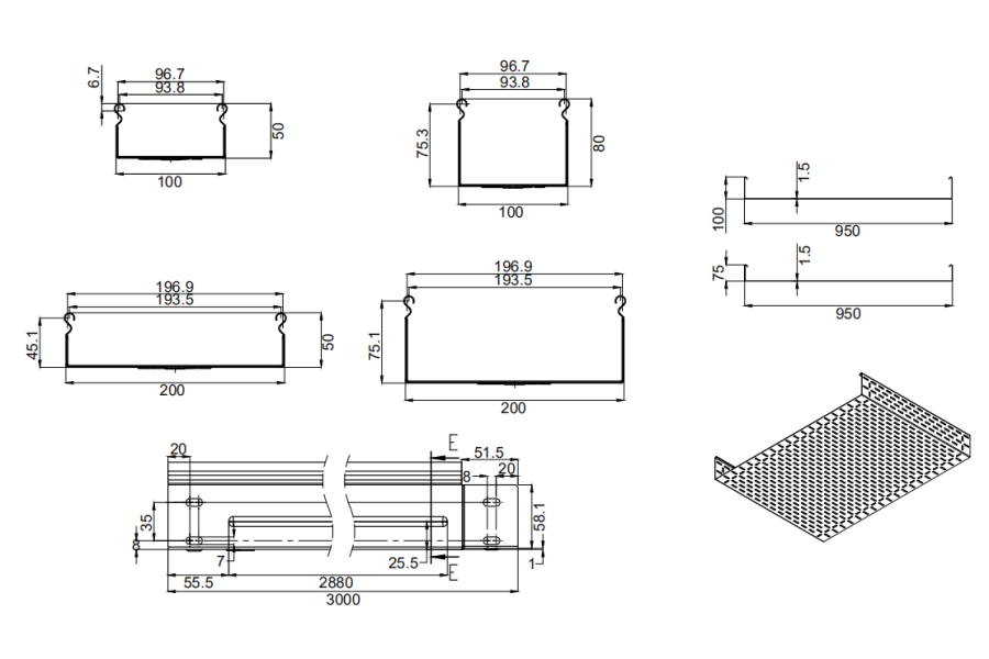
La velocidad para estos diseños ha sido de hasta 20m/min, se pueden utilizar materiales como acero galvanizado en caliente, acero pre-galvanizado, acero laminado en caliente y en frío, acero inoxidable y aluminio, con espesor de 0.6mm a 1.2mm o 1.2mm. Conociendo las dimensiones puedes determinar la mejor opción para ti, se recomienda para cuando buscas un ancho variable utilizar una base autocompensada con la que podemos mover la base desde la pantalla de nuestro gabinete eléctrico, haciendo los ajustes necesarios fácil y precisamente, si nuestro soporte de cable es liso no es necesario tener una troqueladora, las perforaciones necesarias se pueden hacer con un sistema hidráulico, si la bandeja debe ser perforada, se recomienda la máquina de corte por troquelado, para que alcance una velocidad más alta. La estructura para nuestra máquina será de tipo voladizo.
Si está buscando utilizar tiras de material previamente perforado y cortado, se recomienda la máquina de conformado para alimentación, en la que solo tenemos que insertar la hoja, obtendrá la forma deseada a una velocidad de 12m/min dependiendo del grosor del material.
Todos nuestros sistemas operativos están traducidos al español y al inglés, al igual que los manuales de operación, para que su equipo de trabajo pueda operar la máquina de manera eficiente y segura.
Máquina de Conformado Automático de Bandeja de Cables |
||
Material Mecanizable: |
A) Acero Galvanizado |
Grosor(MM): 0.6-1.2, 1-2 |
B) PPGI |
||
C) Acero al carbono |
||
Límite elástico: |
250 - 550 Mpa |
|
Esfuerzo de tensión: |
G250 Mpa-G550 Mpa |
|
Desenrollador: |
Desenrollador manual |
* Desenrollador hidráulico (Opcional) |
Sistema de perforación : |
Estación de perforación hidráulica |
* Prensa de perforación (Opcional) |
Estación de formación : |
Según sus dibujos de perfil |
|
Marca del motor de la máquina principal : |
Shanghai Dedong (Marca Sino-Alemana) |
* Siemens (Opcional) |
Sistema de accionamiento : |
Transmisión por cadena |
* Transmisión por caja de engranajes (Opcional) |
Estructura de la máquina: |
Tipo voladizo |
* Estación de hierro forjado (Opcional) |
Velocidad de formación : |
10-20 (M/MIN) |
* O según sus dibujos de perfil |
Material de los rodillos : |
GCr 15 |
* SKD-11 (Opcional) |
Sistema de corte : |
Post-corte |
* Pre-corte (Opcional) |
Marca del variador de frecuencia : |
Yaskawa |
* Siemens (Opcional) |
Marca del PLC : |
Panasonic |
* Siemens (Opcional) |
Alimentación eléctrica : |
380V 50Hz 3ph |
* O según sus requerimientos |
Color de la máquina : |
Azul industrial |
* O según sus requerimientos |
1. P: ¿Por qué comprar una máquina Linbay?
R: En Linbay buscamos establecer relaciones duraderas ofreciendo la mejor calidad y precio, así como una experiencia y atención sin igual en el mercado. Contamos con servicio al cliente en México y China para resolver cualquier pregunta o inconveniente, respaldados por nuestros 12 años de experiencia en el mercado.
2. P: ¿Cuál es el tiempo de entrega?
R: El tiempo de entrega es de 60 a 80 días, durante los cuales producimos, ensamblamos y probamos para asegurarnos de que la máquina cumpla con sus expectativas y estándares de seguridad requeridos.
3. P: ¿Cómo empiezo con mi máquina?
R: Al recibir su máquina, se proporcionará un tutorial de ensamblaje y un manual de operación. Recomendamos una visita de nuestro técnico si es la primera vez que usa una máquina de formado o si tiene dudas sobre su operación. El técnico explicará cada detalle y capacitará a su equipo de trabajo.
4. P: ¿Qué proceso debo seguir para comprar una máquina?
A: Puede comenzar contactando a nuestro equipo de ventas por mensaje o correo electrónico. Después, discutiremos qué tipo de máquina se adapta mejor a sus necesidades y estándares. Si desea conocer más sobre nuestra empresa, puede visitar nuestra oficina en México o nuestra fábrica en China para una visita y observar nuestro proceso de fabricación. Una vez que decida unirse a la familia Linbay, comenzaremos la fabricación de su máquina después de firmar los contratos y realizar un pago inicial del 30%.
Desbobinador Manual--Prensa de Punzonado--Máquina de Formado--Corte Hidráulico--Mesa de Salida



-
Mesa fuera
-
Sin energía
-
Auto-apilador
-
-
Corte
-
Corte con sierra
-
corte rápido de vuelo
-
-
Conducción
-
sistema de conducción por cadena
-
sistema de conducción por caja de cambios
-
Caja de cambios con acoplamientos
-
-
Soportes
-
Soportes Torri
-
Soportes de hierro forjado
-
Panel de pared
-
regla
-
-
Punzonado
-
Estación de punzonado hidráulico
-
Sistema de punzonado rápido con rodillos
-
Prensa de punzonado
-
-
Alimentación
-
Alimentador de servo
-
Nivelador
-
-
Desenrollador
-
Desenrollador motorizado y hidráulico
-
Desenrollador motorizado de doble cabeza
-
Desenrollador manual
-